Shared Ownership at Eskdene Rise
Eskdene Rise is a new housing development in the Hetton area of Sunderland, postcode DH5 0EH.
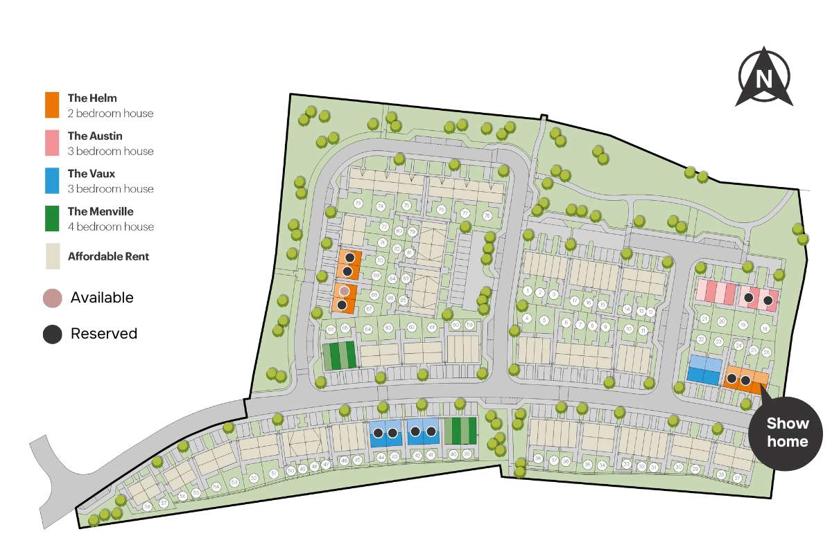
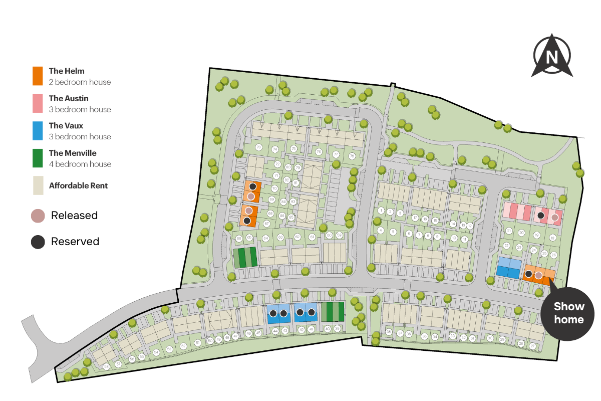
All plots now reserved
Main features
- Contemporary two and three-bedroom homes designed for modern living
- Buy an affordable share from 25% to 75% of a high quality, brand-new two or three-bedroom home
- Long leasehold of 990 years you will never need to extend
- 10-year National House Building Council or Local Authority Building Control warranty that covers any major structural defects
- All Shared Ownership homes come with a two-year Aftercare Guarantee with a dedicated Customer Experience Advisor
- Energy efficient air source heating, solar panels and high-performance glazing
- Carpets fitted throughout with vinyl flooring in wet areas
- Shaker-style kitchen with integrated appliances
- Private parking with an electric car charging point
- 1.7 miles from A19
- Excellent public transport and commuter links
Deposits
Your deposit depends on the property type and the share you buy. We do not have prices for the homes at Eskdene Rise, so cannot yet give examples of costs and deposits.
Council Tax
All the properties at Eskdene Rise are new builds and the Council Tax band is still to be confirmed.

Property types
The Helm at Eskdene Rise
All plots now reserved
Flexible shares from £41,250 for a 25% share and a 5% deposit from £2062.50*
The local area
Local amenities
- Local shops
- 1 mile from Hetton Community Pool and Wellness Centre
- 1 mile from Hetton Lyons Cricket Club
- 1.2 miles from Hetton Medical Centre
- 6.2 miles from Durham Cricket
Town and city centres
- 0.8 miles from Hetton town centre
- 2.7 miles from Houghton town centre
- 6.2 miles from Durham city centre
- 9.1 miles from Sunderland city centre
Schools
- 0.4 miles from Hetton Primary School
- 0.4 miles from Hetton Academy
- 0.6 miles from Hetton Lyons Primary School
- 1.7 miles from Easington Lane Primary School
- 1.7 miles from East Rainton Primary School
- 1.7 miles from Eppleton Academy Primary School and Nursery
- 3 miles from Kepier Academy
Local culture and heritage
- 1.2 miles from Hetton Lyons Colliery
- 1.3 miles from Hetton Lyons Country Park
- 3.5 miles from Rainton Meadows Nature Reserve
- 6.2 miles from Durham Cricket
- 6.3 miles from the North East's beautiful coastline
- 8.2 miles from Penshaw Monument
Plot 28: Reserved
Plot 19: Reserved
Plot 24: Reserved
Plot 41: Reserved
Plot 42: Reserved
Plot 43: Reserved
Plot 44: Reserved
Plot 67: Reserved
Plot 70: Reserved
Disclaimer
All images are used for illustrative purposes.
Shared Ownership eligibility
We will check you are eligible for the Shared Ownership home you are interested in. Our checks are to make sure you meet the criteria and can afford your home now and in the future.
How Shared Ownership works
With Shared Ownership you own an affordable share of a brand-new home. You get a long-term leasehold and have the same rights as someone who owns their entire home.
Buying a Shared Ownership home
We will give you advice and support throughout each step of the application process, from confirming you are eligible to completing the sale.