Eskdene Rise, Hetton

Eskdene Rise is our new housing development in the Hetton area of Sunderland.

Launching Spring/Summer 2025

For more information

Contact Hayley Dickinson

renttobuy@gentoogroup.com

0191 525 5620

Monday to Thursday
8:30am to 5pm

Friday
8:30am to 12:30pm

Main features

  • Three and four bedroom houses
  • Energy efficient air source heating, solar panels and high-performance glazing
  • Vinyl flooring in bathrooms, WC, and kitchen.
  • White contemporary style sanitaryware
  • Turf to front and rear gardens
  • Private parking with an electric car charging point
  • All homes come with a Gentoo customer care guarantee

Applying for Rent to Buy

Download the Rent to Buy application form here and return it to us. 

 

Property types

The Vaux at Eskdene Rise

The Vaux is our contemporary three-bedroom home.
From £720 per month

The Menville at Eskdene Rise

The Menville is our four-bedroom home.
All plots sold

The Austin at Eskdene Rise

The Austin is our contemporary three-bedroom home.
From £700 per month

The local area

Local amenities

  • Convenience store 1 minute walk away
  • Tesco Express less than 1 mile away
  • Hetton town centre less than 1 mile away

Local culture and activities

  • 1 mile from Hetton Community Pool & Wellness Centre
  • 1.6 miles from Hetton Lyons Country Park
  • 3 miles from Houghton le Spring Golf Club
  • 20min drive to Seaham Beach

Schools

  • Less than 1 mile from Hetton Academy
  • 5 Primary Schools within a 2 mile radius

City Centre

  • Less than 2 miles from A690
  • 20mins drive from Durham City Centre
  • Less than 3 miles from Houghton le Spring City Centre
  • Less than 30min drive to Sunderland City Centre
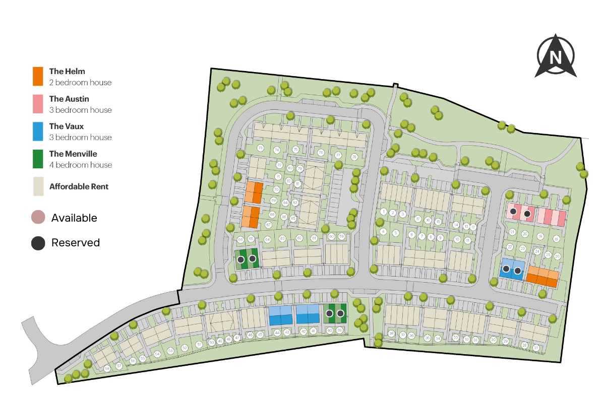
Eskdene Rise, Hetton

Development map

Register your interest

How would you like us to contact you?
How would you like us to contact you?
Our developments
Our developments Select all the developments you want to register your interest in
Bramblewood house type Select the house type or plot you are interested in
Chester Gate house type Select the house type or plot you are interested in
Cricketers Hill house type Select the house type or plot you are interested in
Disclaimer

By registering your interest, you confirm you want us to send you information about Rent to Buy and the developments you selected. You can decide to stop receiving this information at any time.

Register your interest

Register your interest for one of our Rent to Buy properties.
Register your interest

Rent to Buy eligibility

We will check you are eligible for the Rent to Buy home you are interested in. Our checks are to make sure you meet the criteria and can afford your home now and in the future.
Rent to Buy eligibility

Applying for Rent to Buy

Apply for a Rent to Buy home in three simple steps.
Applying for Rent to Buy