Cricketers Hill, Carley Hill
Launching spring 2026
A new development of 2 and 3 bedroom homes, postcode SR5 2QB
For more information
Contact Hayley Dickinson
Monday to Thursday
8:30am to 5pm
Friday
8:30am to 12:30pm
Overview
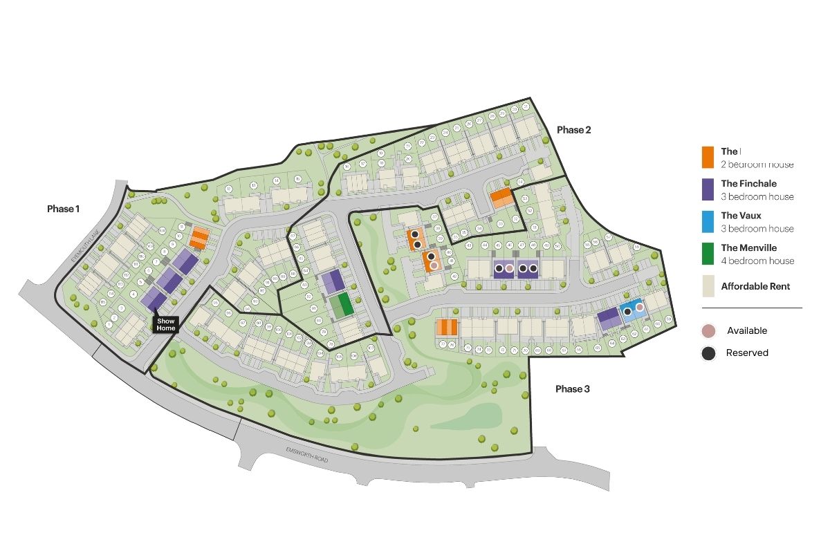
The development is being built by RE:GEN on the former Carley Hill Educational Centre site. The development will have 115 two, three and four bedroom houses, two bedroom bungalows, and two bedroom apartments.
Most of the properties will be available for affordable rent, and some will be available for Shared Ownership and Rent to Buy.
As part of Gentoo commitment to carbon reduction, the new homes will be built with sustainable technology featuring air source heat pumps, smart meters, photo-voltaic panels, full fill cavity wall insulation and electric vehicle charging points.
Property types
The local area
Local amenities
- 2 miles from the Bridges shopping centre
- 8 minute walk to Aldi
Schools
- 6 primary schools or nurseries within a 1 mile radius
Local culture and activities
- 1.4 miles from Stadium of Light
- 1.6 miles from Roker beach
- 1.8 miles from National Glass Centre
City centre
- Less than 2 miles from Sunderland City Centre
Funded by HM Government via the Brownfield Land Release Funding (BLRF2)
